VAULTLINE

0 Likes

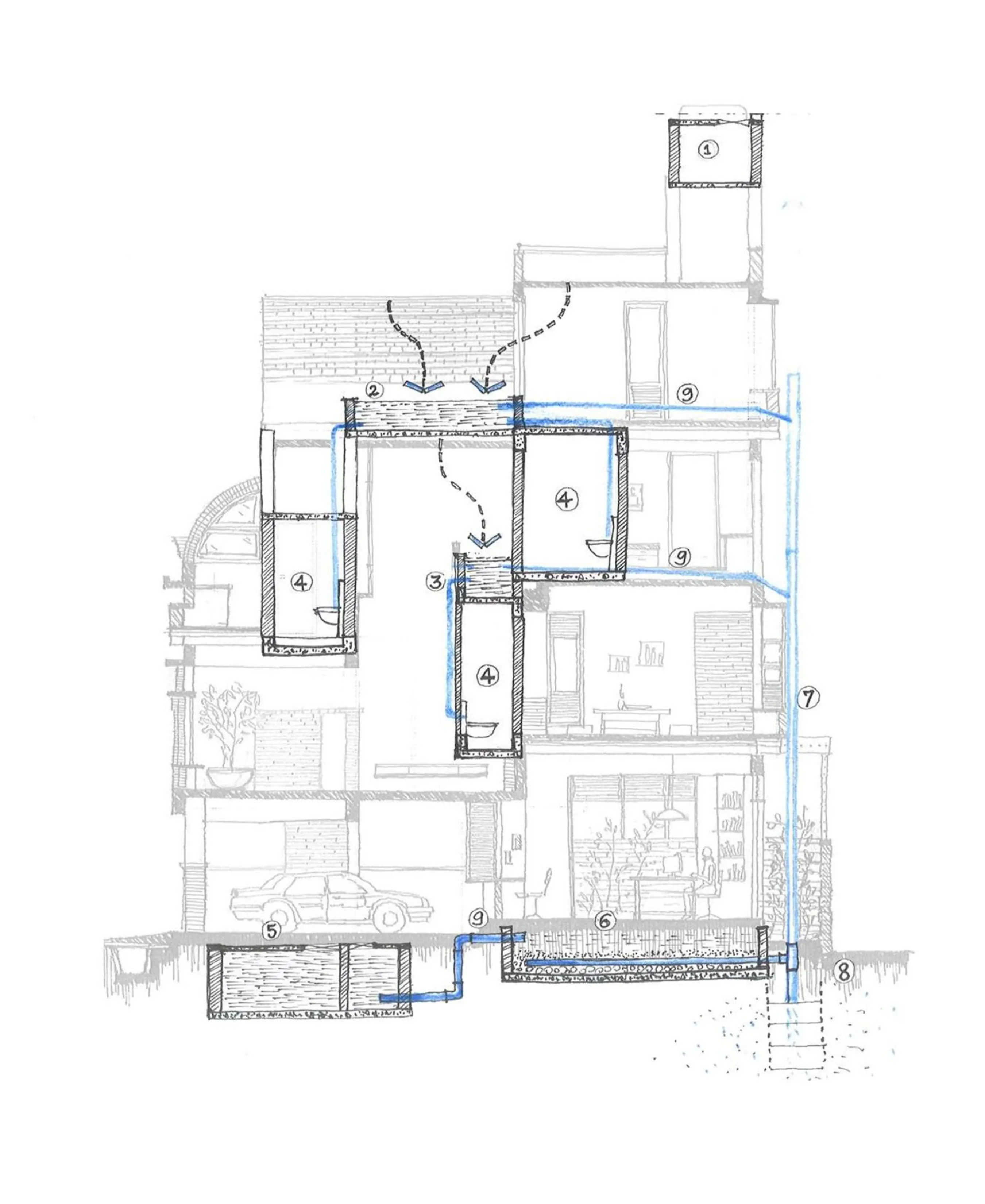
The elements of design viz. brick vaulted roof, arch panelled roof, sunshades, rainwater gutters, sill and lintel band projections, interior niches brought about articulation of the interior spaces while also creating an interesting silhoutte and a punctuated external facade.

SURFACE ARTICULATION 

The elements of design viz. brick vaulted roof, arch panelled roof, sunshades, rainwater gutters, sill and lintel band projections, interior niches brought about articulation of the interior spaces while also creating an interesting silhoutte and a punctuated external facade.

Comments (0)

Leave your comment